Pour faire une visite rapidement on vous propose de déposer un dossier complet sur le site internet sécurisé de LOCAVERIF,. Pour cela il vous d’aller sur google, taper ‘locaverif’, aller sur le site de ‘candidat.locaverif’ et cliquer sur ‘je constitue mon dossier’ en renseignant ensuite le code agence 62534 puis de deposer votre dossier en moins de 5 min. Dès qu’il sera complet, sous 24h on vous contactera pour vous porposer une visite du logement.
Les propriétaires accepteront des dossiers avec garants mais aussi avec une assurance Garantie Loyer impayée.
Colocation possible si garant commun.
Loyer pas encadré par les plafonds de ressources de revenus PINEL
Référence exigée par le propriétaire : Gagner minimum 2400 € / mois net ou avoir un garant qui gagne plus de 3300 € / mois
Disponible à partir du 10 05 2026
Sans honoraires de location, prévoir uniquement un mois de caution à verser le jour de l EDLE.
Loyer 1095 € sans charges de copropriété car pas de syndic.
BAIL vide de 3 ans avec reconduction automatique au bout de 3 ans pour 3 ans.
Raccordé à la Fibre au débit.
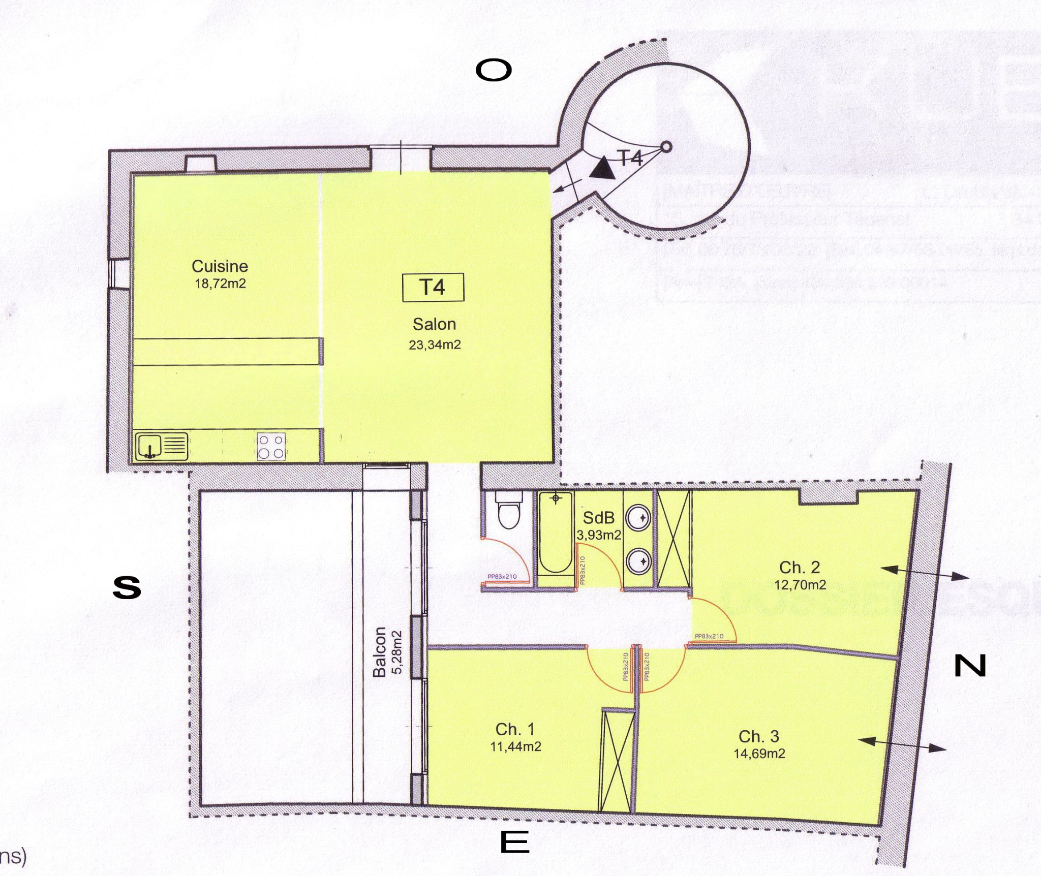
T4 de 89 M2 dans maison de village au deuxième et dernier étage avec terrasse à 5 min du centre de ST JEAN DE VEDAS en voiture sur la commune de Fabregues 34690 12 rue Foch. Entièrement refait à neuf en 2010. Possibilité de se garer à 50 M dans la rue dans un pk public gratuit. Situé dans une ruelle secondaire, peu de passage de voiture, bien ensoleillé.
Salon/sejour avec climatisation réversible. Orientation Terrasse SUD de 5 m2 avec balcon vue sur les toits 1 chambres SUD de 15 m2 avec placard encastré 1 chambres SUD de 13 m2 avec placard encastré 1 chambre SUD de 13 m2 avec placard encastré Cuisine et salon 50 M2 SUD/SUD OUEST Salle de bain avec Baignoire, double vasque, rangement, emplacement machine à laver.
Sol en carrelage 45×45 pièce de jour et parquet partie nuit Cuisine équipée IKEA avec nombreux rangements (meuble, plaque vitro, hotte aspirante, emplacement lave vaisselle et frigo). Placards coulissants avec aménagement de placard dans chacune des 3 chambres. Pas de gaz, production d’eau chaude via cumulus et chauffages électriques radiants économiques. Pas de chien souhaité ni chat car extérieur restreint.
1095 €
| Prix du bien | Piece(s) | Chambre(s) |
|---|---|---|
| 1095 € | 4 | 3 |
T4 de 90 M2 dans maison de village au deuxième et dernier étage avec terrasse.
Année de construction : 2010
Code postal : 34690
ville: Fabregues
Surface Habitable (m²) : 89
Surface de Terrain (m²) : 0
Nombre de chambre(s) : 3
Nombre de pièce(s) : 4
DPE : C (150)
GES : A (5)









