A 10 min au nord du centre ville de Lunel, Charmante maison de 56 m2 avec terrasse, à 5 minutes de l’entrée d’Autoroute qui nous mene à Montpellier Odyseum en seulemetn 12 min, Nimes OUEST en 11 min et à la Grande Motte en seulement 15 min.
Vous recherchez un bien alliant calme et confort.
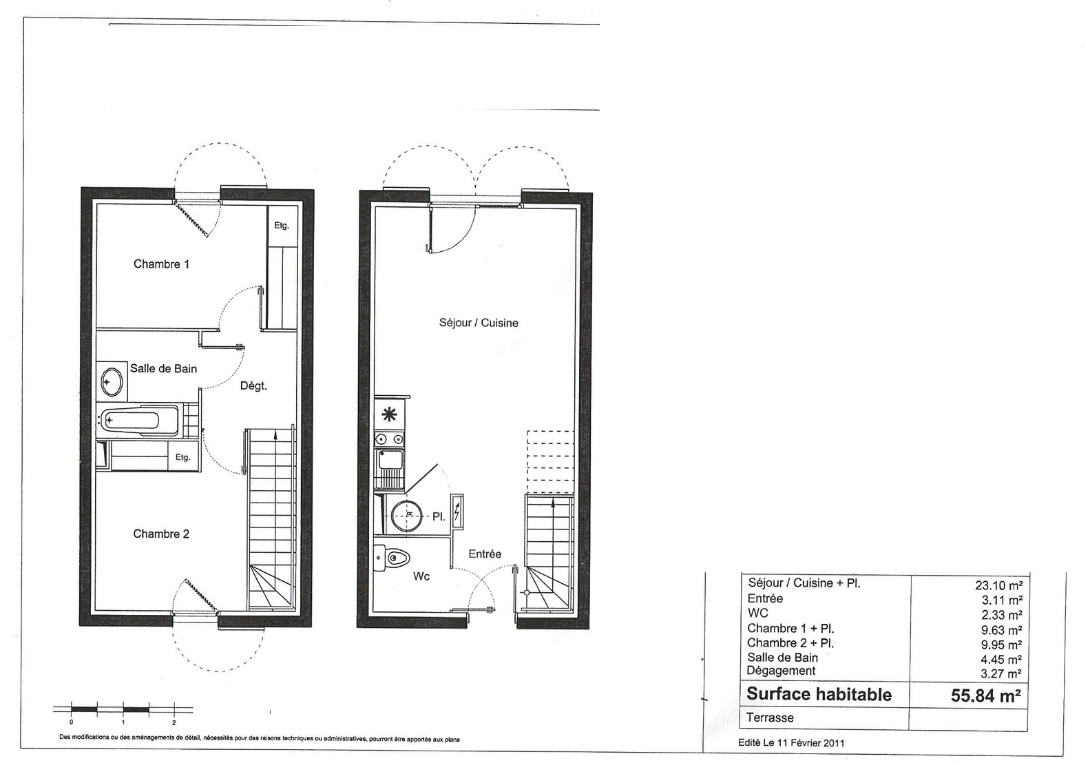
Cette maison de type 3, située dans une résidence avec piscine, construite en 2014, est très bien entretenue, sans travaux à prévoir.
Ce logement de 56 m2, vendu libre de toute occupation et disponible immédiatement, vous séduira par sa disposition fonctionnelle et ses équipements modernes. Il comprend :
Une cuisine équipée (plaque vitrocéramique, hotte, lave-vaisselle, frigo/congélateur, électroménager , vaisselle)
Une salle de bain et des WC séparés avec de nombreux rangements
Deux chambres à l’étage avec dressing
Climatisation dans le séjour/cuisine, chacune des chambres beneficie de climatisation réversible posées en 2024
Une terrasse de 8 m2 offrant une vue agréable sur les arbres et un cadre de vie paisible
Le bien bénéficie également d’une performance énergétique de classe C (DPE 128)
135900 €









